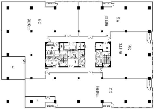
锦和中心
写字楼租金均价
3.6元/㎡/天
漕河泾/田林商圈
写字楼租金均价
3.4元/㎡/天
徐汇区
写字楼租金均价
4.3元/㎡/天
上海徐汇区写字楼出租/办公楼租赁
锦和中心写字楼位于虹漕路68号,位于徐汇田林市中心区域,集休闲商业、创意产业、商务服务于一体。项目原址为SVA金星电视机厂,应漕河泾产业升级之势而变,由上海锦和置业与SVA集团联手打造,将改造成为国际化时尚商业综合街区。
以上93office(www.93office.com)办公楼租赁信息是否帮助到您,若想了解更多,请关注徐汇区写字楼出租专区。
微信一键扫码拨号
18917328282
搜索到条记录