宝华城市晶典

上海写字楼出租 >  普陀写字楼出租 >  长寿路写字楼出租 >  宝华城市晶典出租
宝华城市晶典写字楼出租-办公楼外立面
宝华城市晶典写字楼租赁-办公楼入口
宝华城市晶典写字楼租金-办公楼大堂
宝华城市晶典办公楼出租-写字楼大堂电梯
宝华城市晶典办公楼租赁-写字楼楼层电梯
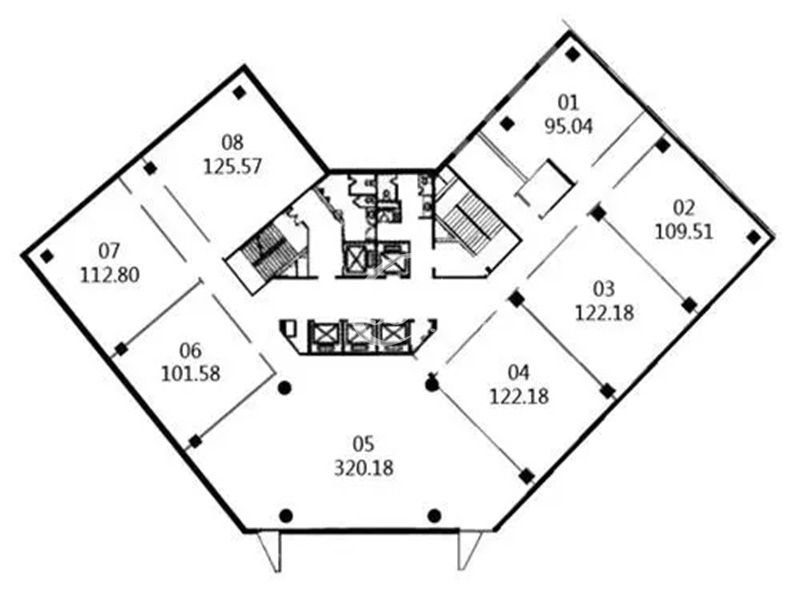
宝华城市晶典办公楼租金-写字楼平面图
宝华城市晶典商务楼出租-写字楼走道

3.0 - 3.7元/㎡/天

  • 8
    房源数量
  • 95-650
    可租面积
  • 近期 32 位用户关注
  • 安远路518号
  • 地铁13号线; 地铁7号线长寿路站393米 地铁7号线昌平路站600米 地铁13号线; 地铁14号线武宁路站718米
    写字楼租赁物业招商黄先生
    黄青 Green
    微信一键扫码拨号 18917328282
    办公室租赁物业招商黄先生

写字楼租金行情

  • 宝华城市晶典
    写字楼租金均价

    3.4元/㎡/天

  • 长寿路商圈
    写字楼租金均价

    3.8元/㎡/天

  • 普陀区
    写字楼租金均价

    3.6元/㎡/天

宝华城市晶典概况

  • 竣工年份 2010 年
  • 总楼层 20 层
  • 标准层面积 1100 平方米
  • 得房率 70 %
  • 空调 中央空调(工作时间)
  • 净高 2.9 米
  • 物业管理费 22 元/㎡/月
  • 交房标准 架空地板,墙面涂料,矿棉板配格栅灯

宝华城市晶典简介

上海普陀区写字楼出租/办公楼租赁

宝华城市晶典大厦写字楼位于安远路518号,近胶州路;屹立于长寿CBD核心地段, 地处胶州路,邻近亚新生活广场,周边配套完善,出行便利;离轨道交通7号线步行约8分钟,公共交通有13路、24路、837路可直达上海各处。

宝华城市晶典大厦由1栋28层住宅、1栋20层办公组成,大厦拥有气宇轩昂的建筑立面,精装高贵的挑高大堂,体现不凡身价,成熟的商业办公氛围,高档的5A品质打造,提升企业尊荣形象。

以上93office(www.93office.com)办公楼租赁信息是否帮助到您,若想了解更多,请关注普陀区写字楼出租专区。

宝华城市晶典 

Bauer City Jingdian building

3.0 - 3.7元/㎡/天
咨询顾问
办公室租赁物业招商黄先生 微信一键扫码拨号 18917328282
写字楼租赁物业招商黄先生
黄青 Green
预约看房
  • 上海写字楼
  • 区域写字楼
  • 商圈写字楼
  • 热门写字楼
  • 热门创意园
  • 热门联合办公
+ 查看更多
+ 查看更多