企业中心

企业中心写字楼出租-办公楼外立面
企业中心写字楼租赁-办公楼入口
企业中心写字楼租金-办公楼大堂
企业中心办公楼租赁-写字楼楼层电梯
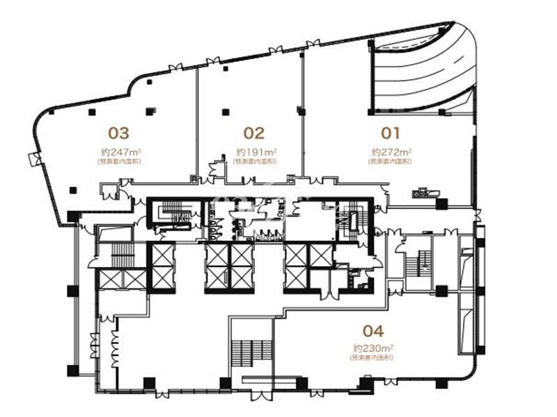
企业中心办公楼租金-写字楼平面图

3.1 - 4.5元/㎡/天

  • 10
    房源数量
  • 125-1560
    可租面积
  • 近期 32 位用户关注
  • 天目路128号
  • 地铁3号线; 地铁4号线宝山路站343米 地铁8号线中兴路站730米 地铁12号线; 地铁8号线曲阜路站760米 地铁10号线; 地铁12号线天潼路站885米 地铁10号线四川北路站973米
    写字楼租赁物业招商黄先生
    黄青 Green
    微信一键扫码拨号 18917328282
    办公室租赁物业招商黄先生

写字楼租金行情

  • 企业中心
    写字楼租金均价

    3.7元/㎡/天

  • 火车站/汉中路商圈
    写字楼租金均价

    4.4元/㎡/天

  • 静安区
    写字楼租金均价

    4.8元/㎡/天

企业中心概况

  • 竣工年份 2015 年
  • 总楼层 21 层
  • 标准层面积 1960 平方米
  • 得房率 68 %
  • 空调 中央空调(工作时间)
  • 净高 2.9 米
  • 物业管理费 25 元/㎡/月
  • 交房标准 架空地板,墙面涂料,矿棉板配格栅灯

企业中心简介

上海静安区写字楼出租/办公楼租赁

企业中心写字楼位于天目西路128号,近梅园路;傲居上海内环核心,周边五大商圈环绕;地段优越交通便利,隶属静安北拓板块,与南京西路仅一桥之隔;地铁5线汇集,毗邻上海火车站,紧邻南北高架,快读到达城市各大CBD,出行十分便捷。

企业中心是嘉里集团的又一力作,大厦建筑设计独特,装修现代、内部设施齐全,地面及墙身铺设高级大理石,大厦拥有5A自能系统,超高的层高、尊贵挑空打通,尽显非凡气派;紧邻大型绿地,坐享花园办公;并且其物业管理周到,为商家提供了一流的服务。

以上93office(www.93office.com)办公楼租赁信息是否帮助到您,若想了解更多,请关注静安区写字楼出租专区。

企业中心 

business center

3.1 - 4.5元/㎡/天
咨询顾问
办公室租赁物业招商黄先生 微信一键扫码拨号 18917328282
写字楼租赁物业招商黄先生
黄青 Green
预约看房
  • 上海写字楼
  • 区域写字楼
  • 商圈写字楼
  • 热门写字楼
  • 热门创意园
  • 热门联合办公
+ 查看更多
+ 查看更多