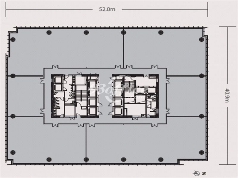
金外滩国际广场
写字楼租金均价
5.3元/㎡/天
豫园/南外滩商圈
写字楼租金均价
5.2元/㎡/天
黄浦区
写字楼租金均价
5.0元/㎡/天
上海黄浦区写字楼出租/办公楼租赁
金外滩国际广场写字楼位于黄浦区会馆弄南、中山南路西,毗邻黄浦江,属“外滩景观区”的延伸带,是外滩金融集聚带重要的组成部分,与陆家嘴金融城隔江而立。
该项目总建筑面积77852平方米,共22层,定位为具有国际一流品质的甲级商务办公楼,服务于入驻外滩金融集聚带的证券、基金、投资银行、资产管理、融资服务等金融机构,及会计师事务所、律师事务所等为金融服务的中介机构。
以上93office(www.93office.com)办公楼租赁信息是否帮助到您,若想了解更多,请关注黄浦区写字楼出租专区。
微信一键扫码拨号
18917328282
搜索到条记录