禾森商务中心

上海写字楼出租 >  长宁写字楼出租 >  延安西路写字楼出租 >  禾森商务中心出租
禾森商务中心写字楼出租-办公楼外立面
禾森商务中心写字楼租赁-办公楼入口
禾森商务中心写字楼租金-办公楼大堂
禾森商务中心办公楼出租-写字楼大堂电梯
禾森商务中心办公楼租赁-写字楼楼层电梯
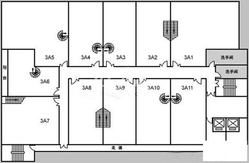
禾森商务中心办公楼租金-写字楼平面图
禾森商务中心商务楼出租-写字楼走道

2.4 - 3.0元/㎡/天

  • 8
    房源数量
  • 38-170
    可租面积
  • 近期 32 位用户关注
  • 延安西路1600号
  • 地铁3号线; 地铁4号线延安西路站341米
    写字楼租赁物业招商黄先生
    黄青 Green
    微信一键扫码拨号 18917328282
    办公室租赁物业招商黄先生

写字楼租金行情

  • 禾森商务中心
    写字楼租金均价

    2.6元/㎡/天

  • 延安西路商圈
    写字楼租金均价

    3.0元/㎡/天

  • 长宁区
    写字楼租金均价

    3.5元/㎡/天

禾森商务中心概况

  • 竣工年份 2003 年
  • 总楼层 6 层
  • 标准层面积 900 平方米
  • 得房率 73 %
  • 空调 分体空调(可24小时)
  • 净高 2.5 米
  • 物业管理费 6 元/㎡/月
  • 交房标准 水泥地,墙面涂料,矿棉板配格栅灯

禾森商务中心简介

上海长宁区写字楼出租/办公楼租赁

禾森商务中心写字楼位于延安西路1600号,近种德桥路,位于延安高架路凯旋路匝道附近,近地铁3、4号线延安西路站;交通十分便捷;背后车水马龙,窗前凯桥绿地绿荫掩映,于安静的宽敞空间中体会幽雅的办公环境。

禾森商务中心共高6层,挑高式复式办公房,提供高得房率的开阔空间。中心配有智能化的管理系统:闭路电视监视系统、24小时巡逻系统、停车控制及车牌识别系统、应急电源,照明和扩音系统、智能自动火警检测系统、自动喷水灭火系统;目前已有多家知名企业入住办公。

以上93office(www.93office.com)办公楼租赁信息是否帮助到您,若想了解更多,请关注长宁区写字楼出租专区。

禾森商务中心 

He Sen Business Center

2.4 - 3.0元/㎡/天
咨询顾问
办公室租赁物业招商黄先生 微信一键扫码拨号 18917328282
写字楼租赁物业招商黄先生
黄青 Green
预约看房
  • 上海写字楼
  • 区域写字楼
  • 商圈写字楼
  • 热门写字楼
  • 热门创意园
  • 热门联合办公
+ 查看更多
+ 查看更多